Оказываем полный комплекс услуг по проектированию объектов ижс
Сегодня мы занимаемся комплексным проектированием домов, гаражей и других объектов индивидуального строительства. Но начинали мы с выполнения работ по проектированию отдельных систем. Благодаря этому мы накопили огромный практический опыт и каждый выполненный нами проект дома продуман до мелочей.
Также мы осуществляем авторский надзор, технический надзор, надзор за строительством, что даёт вам уверенность в том, что строительство идёт по плану, а нам — бесценный дополнительный опыт и знания о том, какие сложности возникают на этапе реализации проекта и как их избежать.
Оказываем полный комплекс услуг по проектированию объектов ижс
Сегодня мы занимаемся комплексным проектированием домов, гаражей и других объектов индивидуального строительства. Но начинали мы с выполнения работ по проектированию отдельных систем. Благодаря этому мы накопили огромный практический опыт и каждый выполненный нами проект дома продуман до мелочей.
Также мы осуществляем авторский надзор, технический надзор, надзор за строительством, что даёт вам уверенность в том, что строительство идёт по плану, а нам — бесценный дополнительный опыт и знания о том, какие сложности возникают на этапе реализации проекта и как их избежать.
Для того чтобы убедиться в том, что наши проекты домов продуманы до мелочей и выполнены безупречно, а при строительстве не возникнет проблем предлагаем пример одного из наших индивидуальных проектов.
Этот проект выполнен нашими специалистами. Кейс содержит краткое описание работ, чертежи, визуализация, фото на всех этапах строительства.
Проекты от компании Мой Дом Проект отвечают всем требованиям, которые выдвигают заказчики. Построив дом по проекту, который разработали мы вы можете быть уверены, что дом окажется добротным, долговечным, безопасным, красивым, надёжным, комфортным. И если
вы разумно подходите к расходам, если цените профессионализм и добросовестность доверьте проектирование дома и любого другого объекта частного строительства нам.
Наименование объекта: Дата начала разработки проектной документации – март 2025 года.
Срок разработки проектной документации – 2 месяца по дому, 1 месяц по гаражу.
Разрабатываемые разделы: Архитектурные решения, Конструктивные решения, Наружные сети.
Ниже в качестве примера приведены некоторые листы проекта (нумерация принята по файлу).
Участок расположен на закрытой территории посёлка и это - один из нескольких домов, спроектированных для него. В посёлке предусмотрено соблюдение чётких параметров внешнего вида домов.
Данный лист отражает расположение дома на участке с учётом действующих норм по застройке, отступы от границ участка заранее согласованы Заказчиком с администрацией района, учтены особенности рельефа. Участок небольшого размера сложной многоугольной формы, с выходом на центральную улицу, со всех сторон окружён зелёным массивом. В данном случае на генплане нет отображения проектируемых сетей, в силу дальнейшей нечитаемости.
На данном листе проекта дома отражён главный фасад дома и въездная группа. Посадка здания подразумевает въезд в гараж с центральной улицы. Рядом с гаражом расположен вход на участок. Входная группа дома расположена между домом и гаражом и оформлена в виде скрытого от осадков перехода (АР)
Вид с противоположной стороны на дом, веранду с балконом и витражами, находясь на котором получаем широкий обзор окружающей природы и внутридомовой территории (АР)
На данном листе отражён главный фасад, который в свою очередь является продолжением забора. Посадка здания подразумевает въезд в гараж сразу с дороги. Данная посадка полностью согласована собственником, и выполнена на его усмотрение (АР)
Фасадный вид со стороны двора, с фрагментом входной группы в дом (АР)
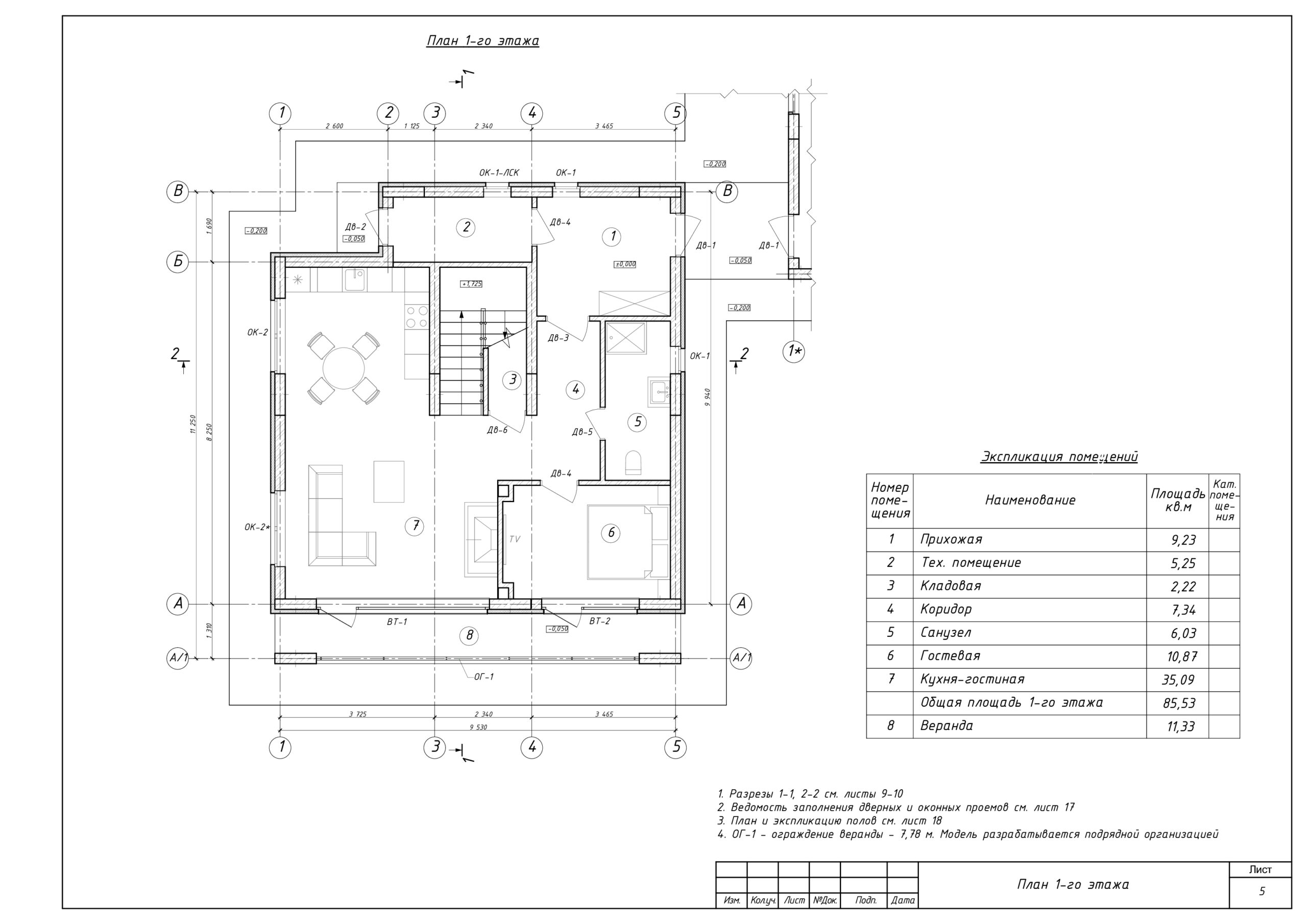
План с расстановкой мебели. Планировочные решения выполнены исходя из пожеланий заказчика под большую семью из 5-6 человек. Планировка предусматривает разделение дома на 2 блока – спальный блок с 3-мя просторными спальнями, кабинетом и блок большой кухни-гостиной с большими витражными окнами (АР).
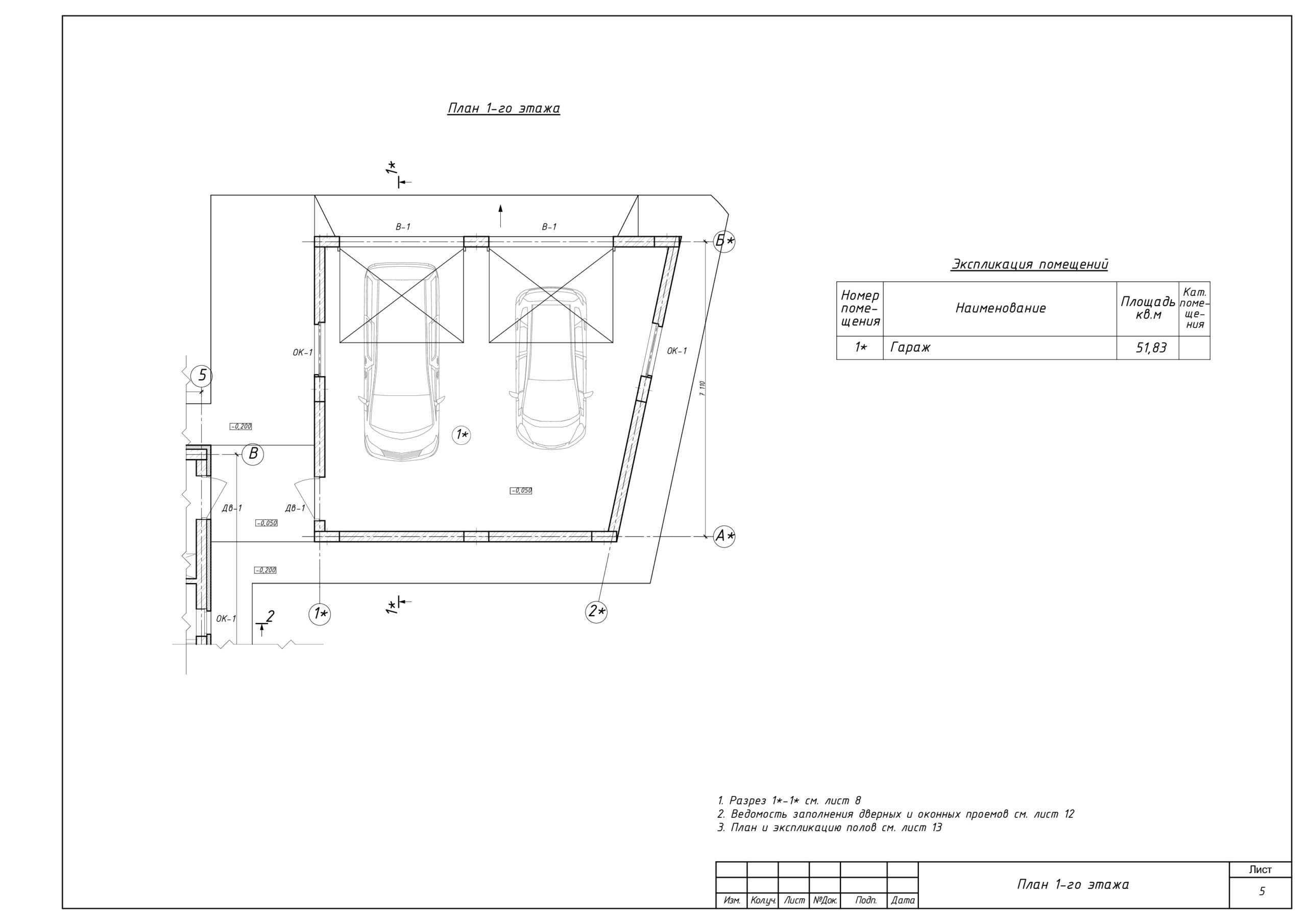
Гараж предусмотрен на 2 машино-места с индивидуальными въездами. Форма здания повторяет угол участка (АР)
Лист отображает вертикальное сечение здания, указаны все характерные высотные отметки. Также указаны «флажки» по составу конструкций – основание, стены, кровля (АР)
Детально проработанные фасадные виды с маркировкой проёмов с детальной типологией материалов фасадной отделки, а также узлом устройства покрытия стен гибкой керамикой. Указываются все характерные высотные отметки, и общие цифры по количеству материалов фасадной отделки для осуществления предзаказа (АР)
Таблица отражает наш серьёзный подход к проектированию. На каждом проектируемом объекте обязательно выполняются поверочные расчёты. Учитываются все возможные нагрузки и добавляются коэффициенты запаса в соответствии с методикой расчёта. Также представлены расчётные схемы, на основании которых выполняются расчёты и отображаются сильные и слабые стороны конструкции (РР)
После проведения расчёта описывают вывод, в котором содержится краткая информация по габаритам и армированию – это является заданием для подготовки рабочих чертежей фундаментов, каркасов и перекрытий (РР)
Стартовая точка строительства. Просчитаны все высотные отметки для устройства подушки фундамента, угол откопки котлована. На данном этапе закладываются закладные детали будущей инженерной сети дома (КР)
На данном листе показано основное армирование, с деталировкой арматуры, укрупненным примером прохождения основных силовых элементов. Представлена спецификация основных элементов (КР)
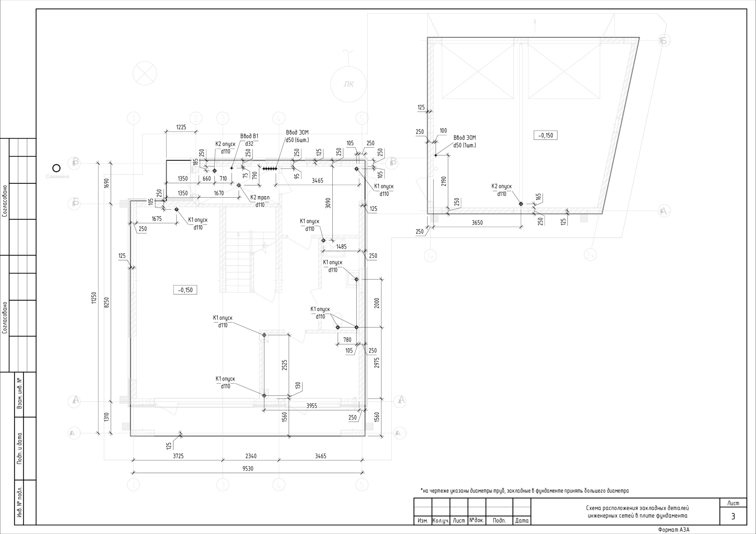
На плане отражено расположение закладных деталей с привязками для прохождения инженерных коммуникаций, которые разрабатываются до начала строительства (КР)
Схема расположения основного армирования плиты перекрытия Пп1 на отметке +3,350. На схеме отражено расположение основного армирования, дополнительных деталей и усилений арматурного каркаса. Показан типовой разрез по армированию плиты, детали и спецификация необходимого материала (КР)
На плане указаны элементы перемычек, их маркировка, ведомость и спецификация к схеме (КР)
Конструкция данного дома – железобетонный каркас с заполнением. Основными элементами каркаса являются монолитные пилоны, расставленные по периметру здания и внутри. Данный лист демонстрирует арматурный каркас несущего элемента, с чёткой деталировкой и спецификацией (КР)
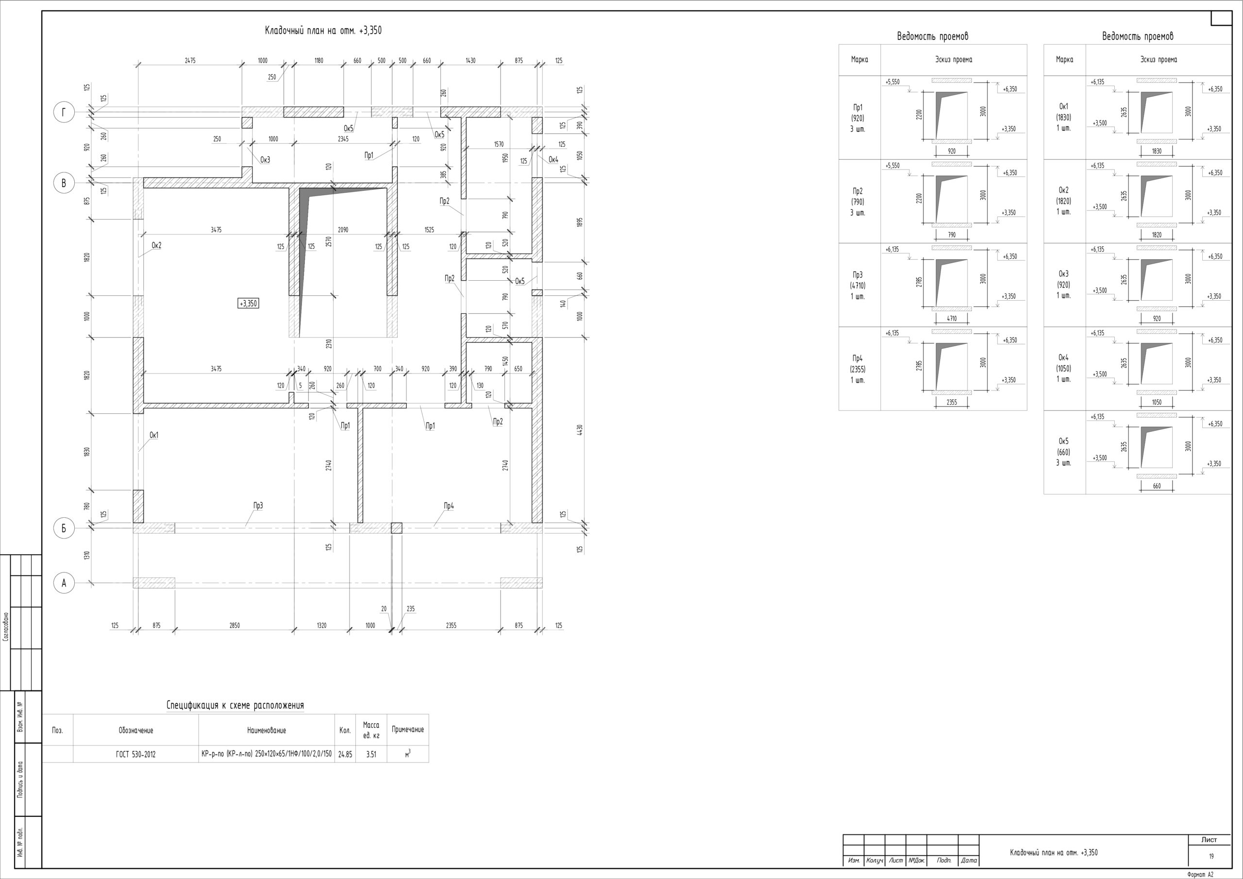
Проектируемое здание имеет монолитный каркас, с заполнением керамическим кирпичом. На плане указаны стены и перегородки из кирпича, монолитные элементы силовой конструкции и все проёмы этажа – оконные и дверные. Проёмы замаркированы и детально отражены на этом же листе с привязками и характерными высотными отметками. Спецификация к данной схеме с количеством кирпича на этаж (КР)
На плане отражено расположение закладных деталей с привязками для прохождения инженерных коммуникаций, которые разрабатываются до начала строительства (НС)
Сводный план позволяет заранее предусмотреть все закладные и выполнить устройство всех необходимых систем, с указанием необходимых уклонов для каждой сети. В данном случае сводный план сделан на комплекс зданий – дом и гараж (НС)
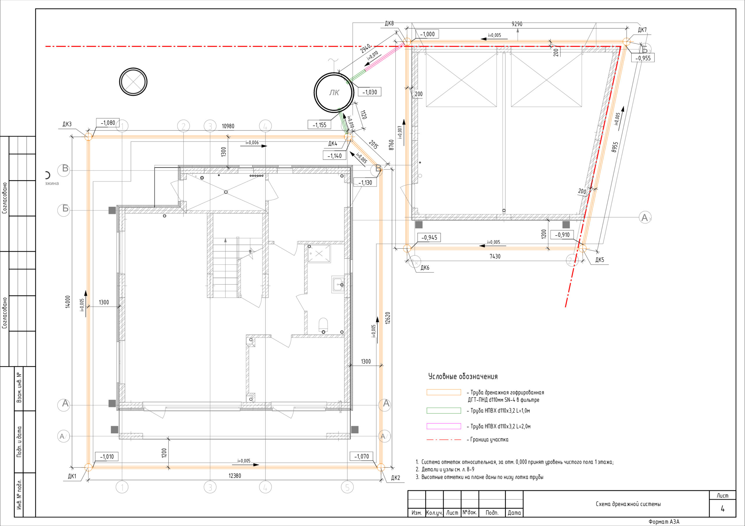
Отражает сеть дренажа, которая выполняется при устройстве плиты фундамента, и является его неотъемлемой частью, отводя от плиты воду. Каждый элемент замаркирован, имеет свою высотную отметку. План легко читаем (НС)
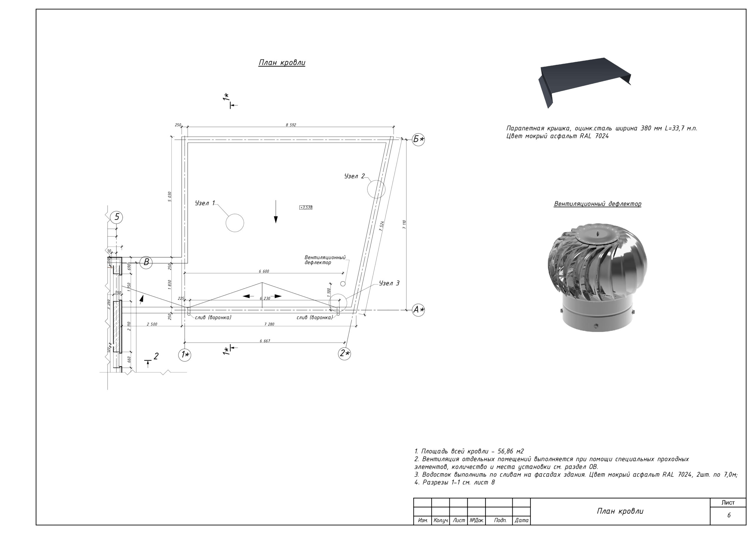
Данная сеть разрабатывается для отведения дождевой воды с кровли и балконов дома. Система дождеприемников закрытого типа позволяет воде из труб попадать непосредственно в сеть, не допуская ливней воды на поверхности отмостки. Каждая деталь и элемент сети замаркированы, что делает их поиск в спецификации быстрым и удобным (НС)
Типовые узлы устройства систем дают наглядное понимание подключения элементов, устройства траншеи (НС)
Схема устройства колодца ЛК. На данном листе показаны типовые детали устройства сети канализации колодца ЛК. Указаны проектные высотные отметки, отметки входа/выхода труб, и маркировка элементов колодца (НС)
Данный лист содержит перечень всех необходимых материалов и их количество для устройства данной сети. На его основании можно сделать расчёт сметной стоимости (НС)
| 1 | Площадь дома | 171,06м2 |
| 2 | Этажность | 2 |
| 3 | Материал стен | ЖБ каркас+кирпичное заполнение+гибкая керамика |
| 4 | Форма крыши | Плоская неэксплуатируемая |
| 5 | Наличие подвала | Нет |
| 6 | Наличие кухни-гостиной | Да |
| 7 | Наличие террасы | Да |
| 8 | Наличие гаража | Отдельно стоящий |
| 9 | Количество спален | 3 |
| 10 | Количество санузлов | 2 |
| 1 | Площадь дома | 51,83м2 |
| 2 | Этажность | 1 |
| 3 | Материал стен | ЖБ каркас+кирпичное заполнение+гибкая керамика |
| 4 | Форма крыши | Плоская неэксплуатируемая |
| 5 | Наличие подвала | Нет |
Ниже вы можете скачать часть проектной документации и чертежей для проекта.