Оказываем полный комплекс услуг по проектированию объектов ижс
Сегодня мы занимаемся комплексным проектированием домов, гаражей и других объектов индивидуального строительства. Но начинали мы с выполнения работ по проектированию отдельных систем. Благодаря этому мы накопили огромный практический опыт и каждый выполненный нами проект дома продуман до мелочей.
Также мы осуществляем авторский надзор, технический надзор, надзор за строительством, что даёт вам уверенность в том, что строительство идёт по плану, а нам — бесценный дополнительный опыт и знания о том, какие сложности возникают на этапе реализации проекта и как их избежать.
Оказываем полный комплекс услуг по проектированию объектов ижс
Сегодня мы занимаемся комплексным проектированием домов, гаражей и других объектов индивидуального строительства. Но начинали мы с выполнения работ по проектированию отдельных систем. Благодаря этому мы накопили огромный практический опыт и каждый выполненный нами проект дома продуман до мелочей.
Также мы осуществляем авторский надзор, технический надзор, надзор за строительством, что даёт вам уверенность в том, что строительство идёт по плану, а нам — бесценный дополнительный опыт и знания о том, какие сложности возникают на этапе реализации проекта и как их избежать.
Для того чтобы убедиться в том, что наши проекты домов продуманы до мелочей и выполнены безупречно, а при строительстве не возникнет проблем предлагаем пример одного из наших индивидуальных проектов.
Этот проект выполнен нашими специалистами. Кейс содержит краткое описание работ, чертежи, визуализация, фото на всех этапах строительства.
Проекты от компании Мой Дом Проект отвечают всем требованиям, которые выдвигают заказчики. Построив дом по проекту, который разработали мы вы можете быть уверены, что дом окажется добротным, долговечным, безопасным, красивым, надёжным, комфортным. И если
вы разумно подходите к расходам, если цените профессионализм и добросовестность доверьте проектирование дома и любого другого объекта частного строительства нам.
Наименование объекта: Индивидуальный одноэтажный жилой дом в Московской области, р-н Балашихи.
Дата начала разработки проектной документации – март 2025 года.
Срок разработки проектной документации – 2 месяца.
Разрабатываемые разделы: Архитектурно-строительные решения, Наружные сети.
Проект подразумевает реконструкцию существующего дома из бруса с расширением и устройством новой кровли с мансардным этажом.
В процессе разработки проектной документации материал заказчику выдавался частями, такк как стартовал строительный сезон и появилась возможность приступить к устройству фундамента для проектируемой части дома.
Объект представляет собой дом из бруса, на свайном фундаменте. Дом не достроен внутри, отсутствует часть межэтажного перекрытия. Также он не завершен с внешней стороны, фасад под воздействием осадков почернел, местами начал появляться грибок, который представляет реальную опасность необработанному дереву.
Объем работы по данному проекту следующий:
- произвести фактические обмеры существующего дома
- спроектировать новое свайное поле в части пристройки с обвязкой и устройством нового пола
- пристраиваемая часть по каркасной системе.
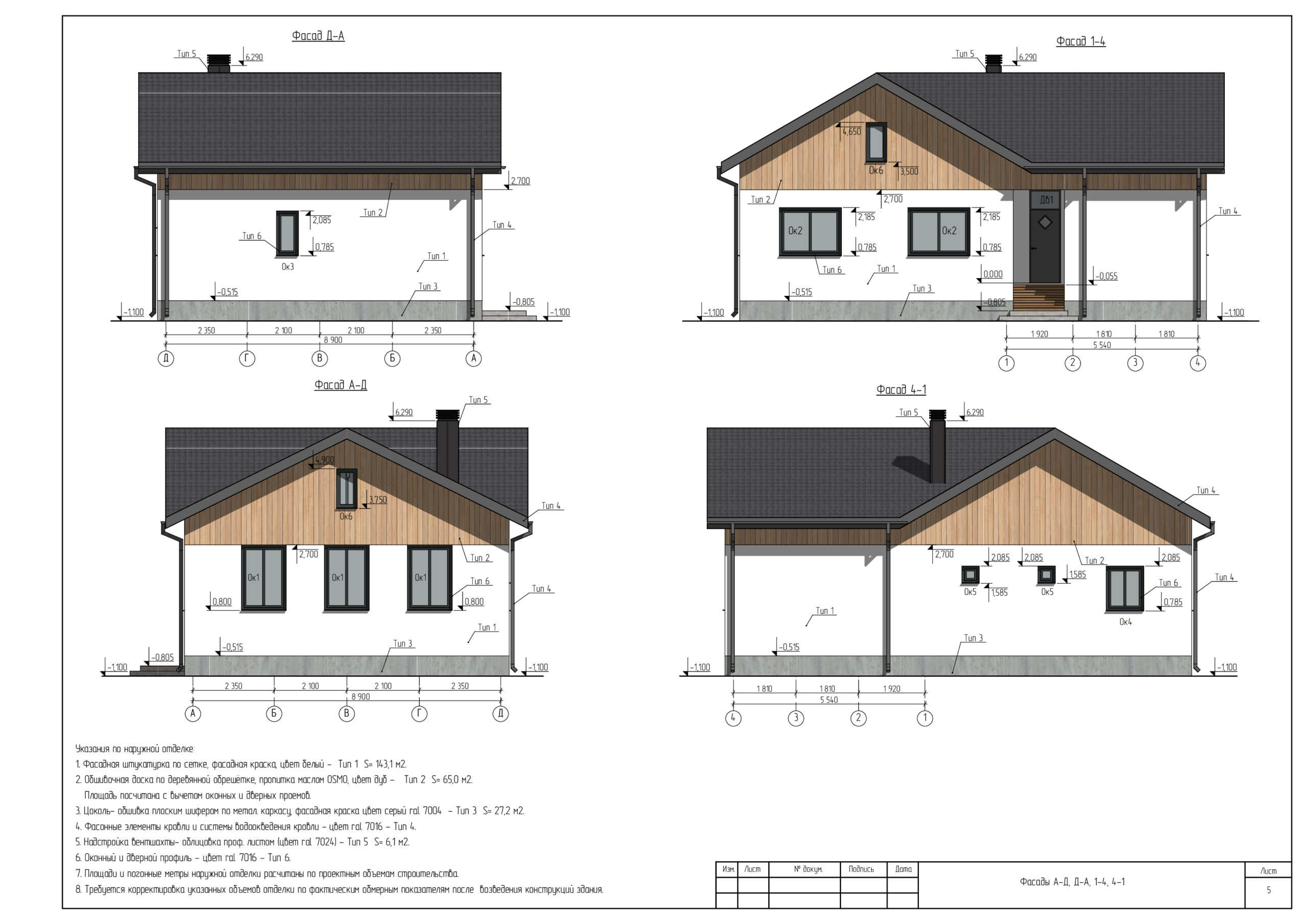
На данном листе отражён главный фасад. Посадка здания подразумевает быстрый доступ к крыльцу главного входа (АС).
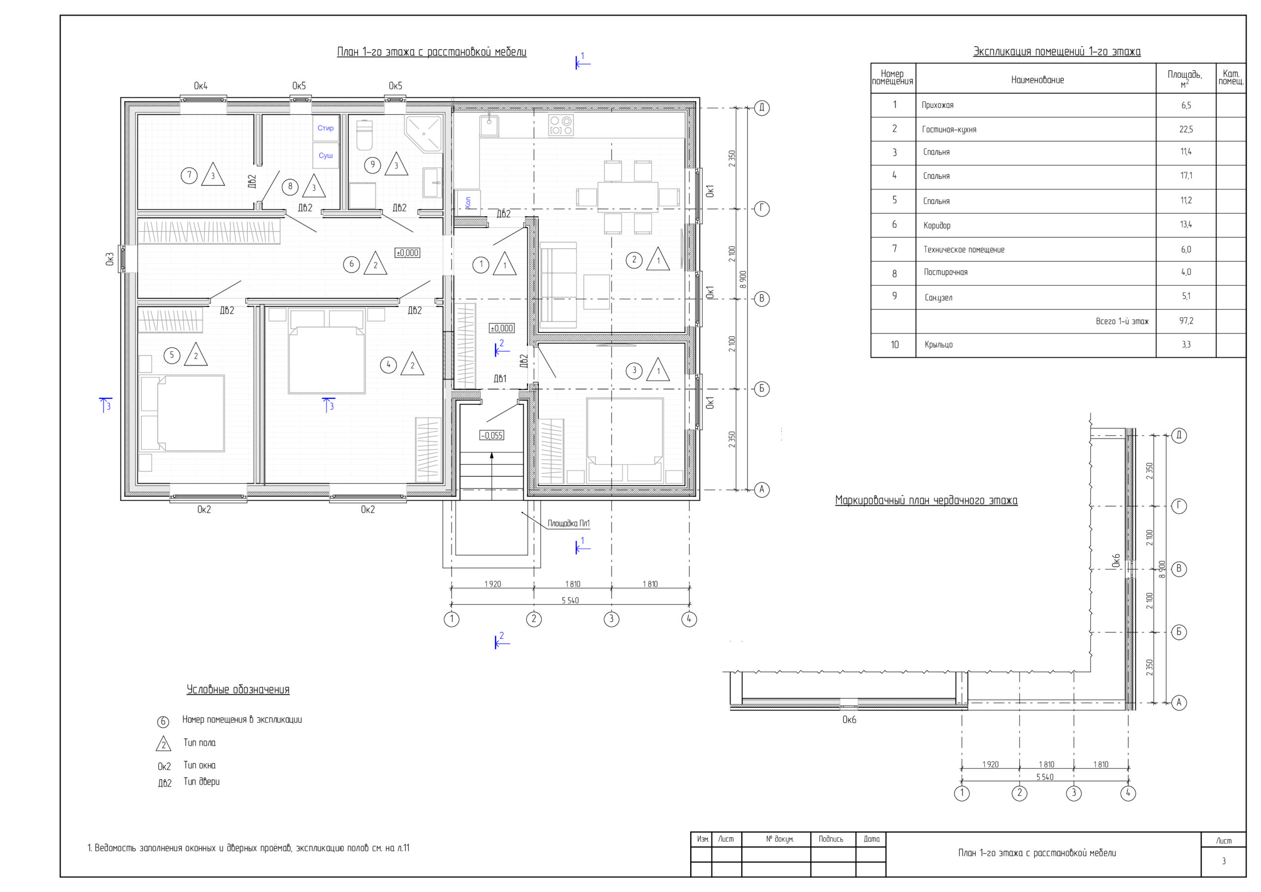
Планировочные решения выполнены исходя из пожеланий заказчика под большую семью. В доме предусмотрены 3 спальни и большая гостиная. В существующей части расположено большое техническое помещение с проходной постирочной комнатой (АС).
Лист отражает фасадные виды со всеми высотными отметками, маркировкой проемов, объёмами фасадной отделки (АС).
Отражает характерные разрезы по дому в существующей части и пристраиваемой. Отражает основные пироги конструкций с чёткой деталировкой, высотными отметками (АС).
Детальная проработка каркасной системы, с указанием привязок расстановки стоек каркаса, раскосов, перемычек, устройство проёмов. Отражена маркировка каждой детали, места сопряжения существующего здания с проектируемой частью через деформационный шов (АС).
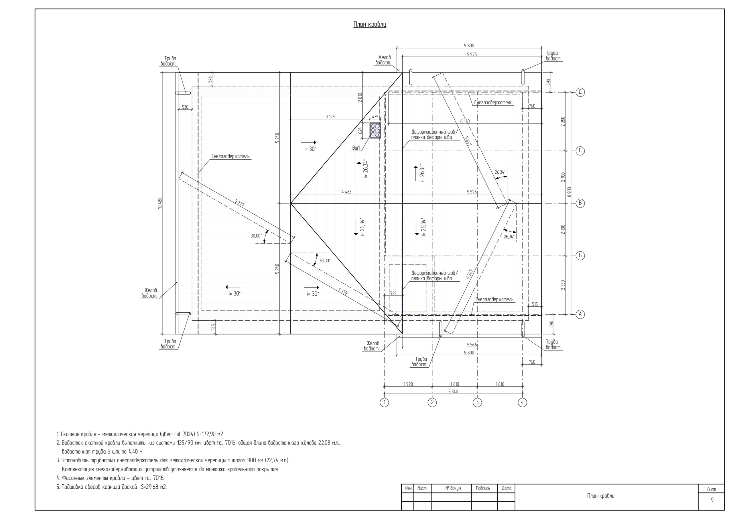
Отражает высоту этажей, отметки Проектом предусмотрена стыкуемая двускатная крыша на каждом блоке с покрытием металлочерепицей. Шахты в данном проекте предусмотрены заводского изготовления комплектующиеся сразу всеми проходными элементами и колпаками, что позволяет смонтировать все в верной последовательности и тем самым исключить протечки. На плане указаны уклоны, привязка шахты, водосточная система, габаритные размеры конька и свесов. Также краткая ведомость с основными объёмами материалов покрытия (АС).
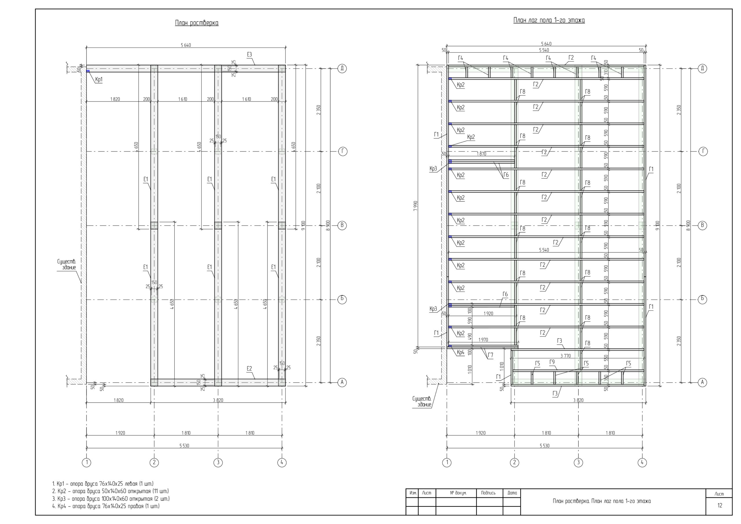
На данном листе представлена конфигурация ростверка относительно существующего дома, и раскладка лаг перекрытия с маркировкой каждой детали (АС).
Читаемое и удобное для понимания 3D отображение всей конструкции в объёме. Каждый тип деталей выделены своим цветом, чётко видно и удобно для восприятия объёма всей каркасной системы (АС).
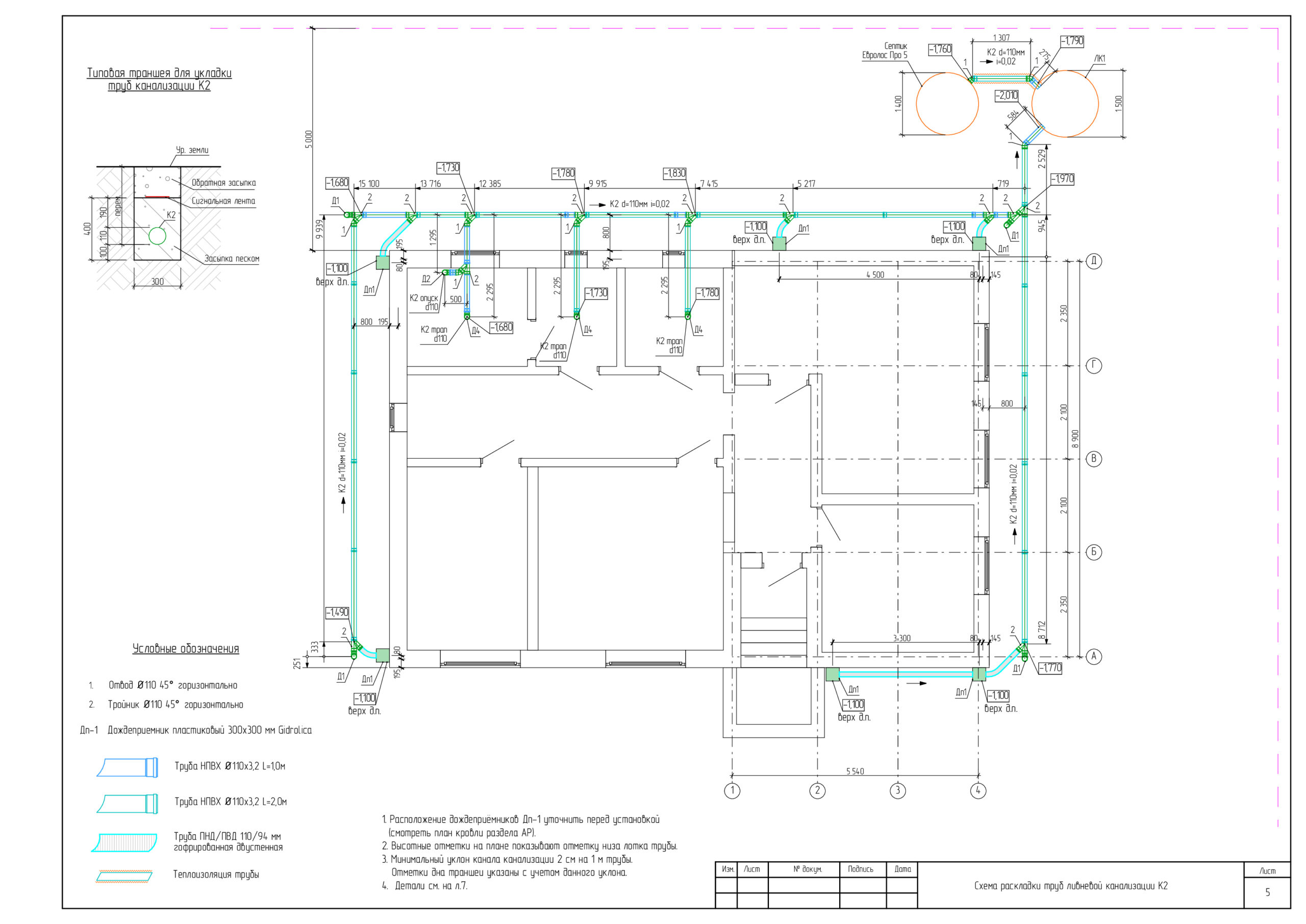
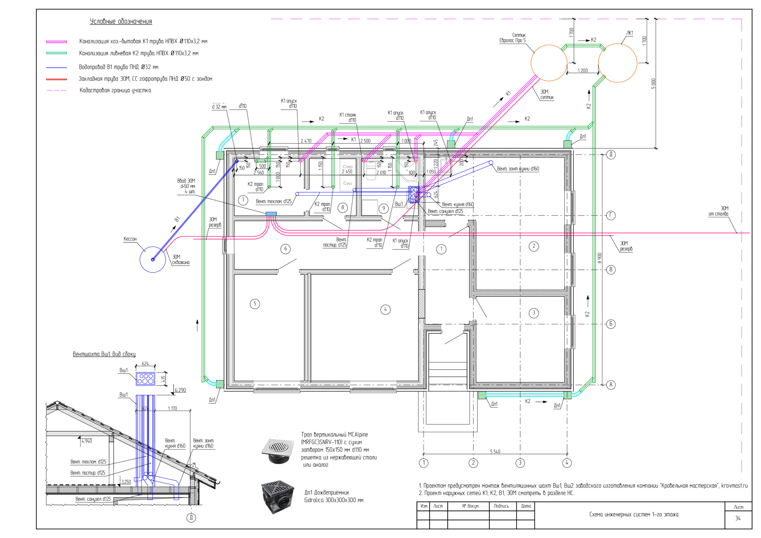
На схеме указаны все внутренние проектируемые сети и наружная ливневая система. Также показан узел прохода вентшахты, с привязками, высотными отметками положения, и диаметрами проходных элементов. Данная схема сетей даёт полное общее представление о коммуникациях, их расположению в плане и между собой. В данном проекте предусмотрено устройство септика для принятия канализационных вод и колодца ЛК для принятия дождевых вод (НС).
Показана детальная раскладка сети ливневой канализации с расположением дождеприёмников, с указанием мест устройства прочисток на тупиковых отрезках и устройство трапов внутри дома (НС).
Представлены типовые узлы устройства сетей, их подземное подключение и деталировка элементов (НС).
Даёт полное представление о количестве материала для устройства данной сети. Частично указан завод-изготовитель, рекомендуемый к установке элементов сети (НС).
Ниже вы можете скачать часть проектной документации и чертежей для проекта реконструкции.